wgn

Grunt budowlany jednorodzinny na sprzedaż Wrocław - Działka na płn Wroclawia pod rezydencje lub willę miejską

Działki sprzedaż, dolnośląskie, Wrocław , Psie Pole

Dodano: ponad 14 dni temu

Opis ogłoszenia:

sygnatura: SG010-1498

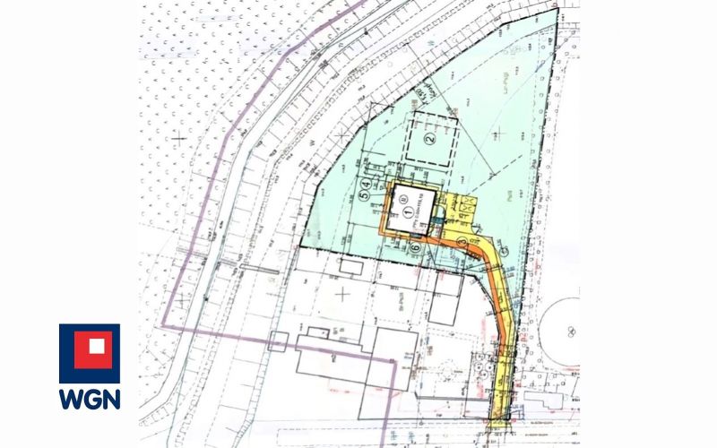
Wrocław, urokliwa DZIAŁKA BUDOWLANA Z POZWOLENIEM NA BUDOWĘ, sprzedaż, 0,4622 ha.

Polecam na sprzedaż atrakcyjną działkę budowlaną we Wrocławiu, położoną w północnej części miasta (Psie Pole - Świniary).
Do działki zostało wydane pozwolenie na budowę dwóch budynków mieszkalnych jednorodzinnych, przy czym pozwolenie obejmuje etap 1 - budowa budynku nr 1. POZWOLENIE AKTUALNE - WYDANE W 2023 R.

Opis nieruchomości:
Działka jest otoczona z każdej strony szpalerem drzew, wjazd od strony zachodniej własnym wjazdem, bezpośrednio z ulicy. Piękna nieruchomość wśród zieleni, w drugiej linii zabudowy.
Do działki są doprowadzone media : woda, prąd, kanalizacja.

Przyszły inwestor może skorzystać z już wydanego pozwolenia na budowę; przeniesienie decyzji w cenie nieruchomości.
Istnieje możliwość podziału działki na dwie odrębne działki ze wspólnym wjazdem na posesje, zgodnie z załącznikiem graficznym wydanym do pozwolenia na budowę.

Wielkość działki i otoczenie , wskazują iż można zabudować tą nieruchomość w celach mieszkaniowych, projektując budynki w zabudowie szeregowej lub wille miejskie.
Jest do zainwestowania powierzchnia 0,4622 ha, średni wskaźnik zabudowy na tym terenie wynosi od 0,06 do 0,39 ; łączna powierzchnia zabudowy wg wydanego pozwolenia na budowę dla etapu 1 i etapu 2 - wynosi 412,40 m2

Działka wg rejestru gruntów jest sklasyfikowana jako:
Bp- zurbanizowane tereny niezabudowane lub w trakcie budowy -pow. 0,2297 ha
Lzr- grunty zadrzewione i zakrzewione na użytkach rolnych - pow. 0,1005 ha
PS III- pastwiska - pow. 0,0670 ha

Bardzo urokliwe miejsce wśród starodrzewia, w otoczenie lasu, niewątpliwie idealne miejsce na usytuowanie domów mieszkalnych z dala od zgiełku dużego miasta.
Szybki dojazd do centrum (do Rynku ok. 13 km), odległość od Autostradowej Obwodnicy Wrocławia ok. 3km, atrakcyjne położenie.

Gorąco polecam.

Więcej ciekawych ofert znajdziesz na wgn.pl

Zapewniamy pomoc w doborze oraz uzyskaniu najkorzystniejszego kredytu hipotecznego na zakup bądź remont nieruchomości.

WGN zapewnia rynkowe ceny, bezpieczeństwo korzystnej transakcji oraz pomoc notariusza.
Wyróżniamy się pełnym zaangażowaniem, ekspercką wiedz i najwyższym poziomem usług opartych na ponad 30-letnim doświadczeniu. Stosujemy System Jakości ZJ WGN oraz Kodeks Etyki Zawodowej Polskiej Federacji Rynku Nieruchomości.

Informacje dotyczące nieruchomości zostały sporządzone na podstawie oświadczeń i nie są ofertą w rozumieniu przepisów prawa, mają charakter wyłącznie informacyjny i mogą podlegać aktualizacji, zalecamy ich osobistą weryfikację

Wszystkie teksty, rysunki, zdjęcia oraz wszystkie inne informacje opublikowane na niniejszych stronach podlegają prawom autorskim. Wszelkie kopiowanie, dystrybucja, elektroniczne przetwarzanie oraz przesyłanie zawartości bez zezwolenia zabronione.
Wszelkie prawa zastrzeżone.

Średnie ceny w tej lokalizacji: 947,90 zł/m²

Licznik odsłon: 5126

tel. (+48)
kom.: +48 5 pokaż
numer

Podstawowe Informacje:

Lokalizacja: Wrocław Psie Pole
3 130 000 okazja!
Cena /m² 677
Rodzaj działka budowlana
Rynek wtórny
Powierzchnia 4622 m²
Powierzchnia działki 4622 m²
Stan prawny działki pełna własność

Media

woda, prąd, gaz, kanalizacja

Lokalizacja na mapie:


wgnWrocław Commercial

Sylwia Stech

e-mail: wrocław@wgn.pl

tel.: (+48) 71 337 84 11

tel.kom.: +48 502 266 125

Adres biura:

ul. Ruska 22/2

50-079, Wrocław, Polska


Interesuje Mnie ta oferta

Zostało jeszcze: znaków

Oceń nasz serwis

średnia ocen: 4,3

Ten serwis korzysta z mechanizmów cookies (ciasteczka)

| Polityka Cookies